【位置図】
〒078-3442
北海道留萌郡小平町鬼鹿田代584番地
☎(0164)57-1321 FAX(0164)57-1343
理念
ひとりひとりの生命と心の重さをしっかりと受け止めます。
ひとりひとりの願い、思い、夢をしっかり受け止めます。
ひとりひとりに応じた暮らし方を探し求め、創りだします。
あたりまえの生活がいとなめるよう必要な支援を行います。
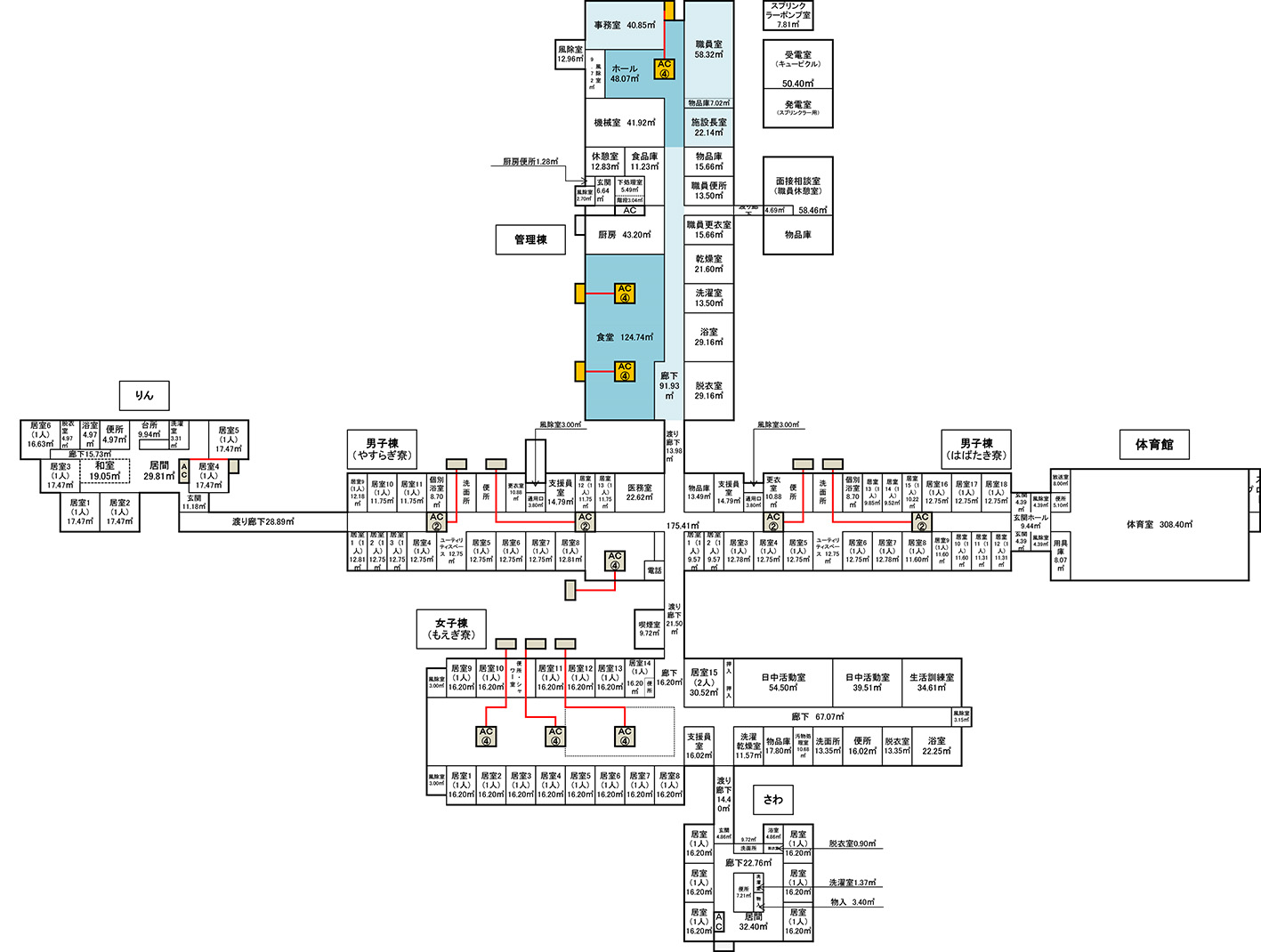
施設概要
- 施設名
- おにしか更生園
- 施設種別
- 障がい者支援施設
- 事業開始
- 1984(昭和59)年5月1日
- 施設管理者
- 施設長 濱 野 修 二
- サービス種別
- ・生活介護 定員75名
・施設入所支援 定員59名
・短期入所 定員2名(空床型) - 敷地面積
- 24,885㎡(小平町より借用)
- 建物面積
- 3,677㎡ (園舎本館2,541㎡・体育館357㎡・就労活動場372㎡
・ユニット住宅2棟/りん208㎡、さわ199㎡)








